Situé au dernier étage d’une maison basque divisée en seulement trois lots, découvrez cet appartement lumineux offrant une configuration unique et de nombreuses possibilités d’aménagement.
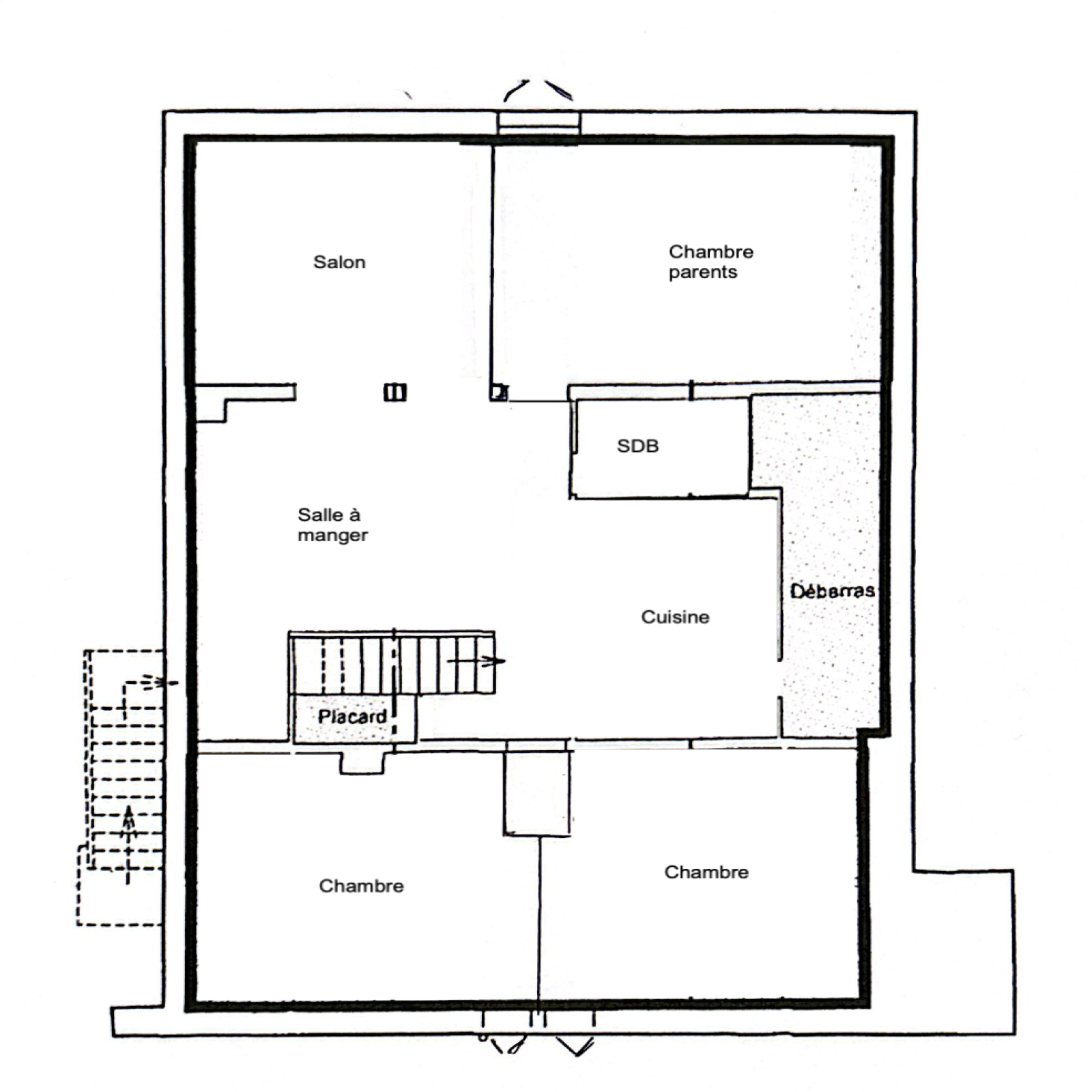
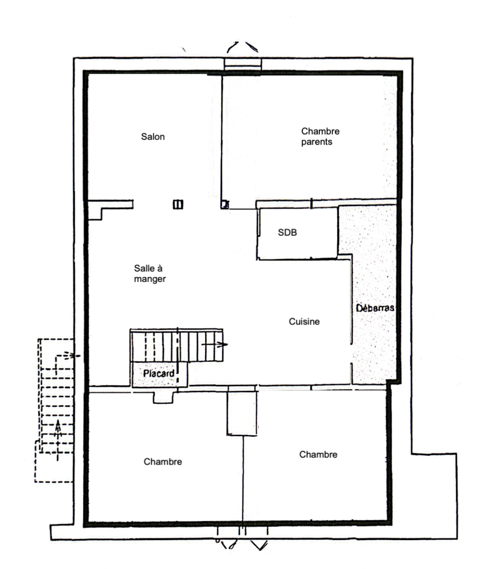
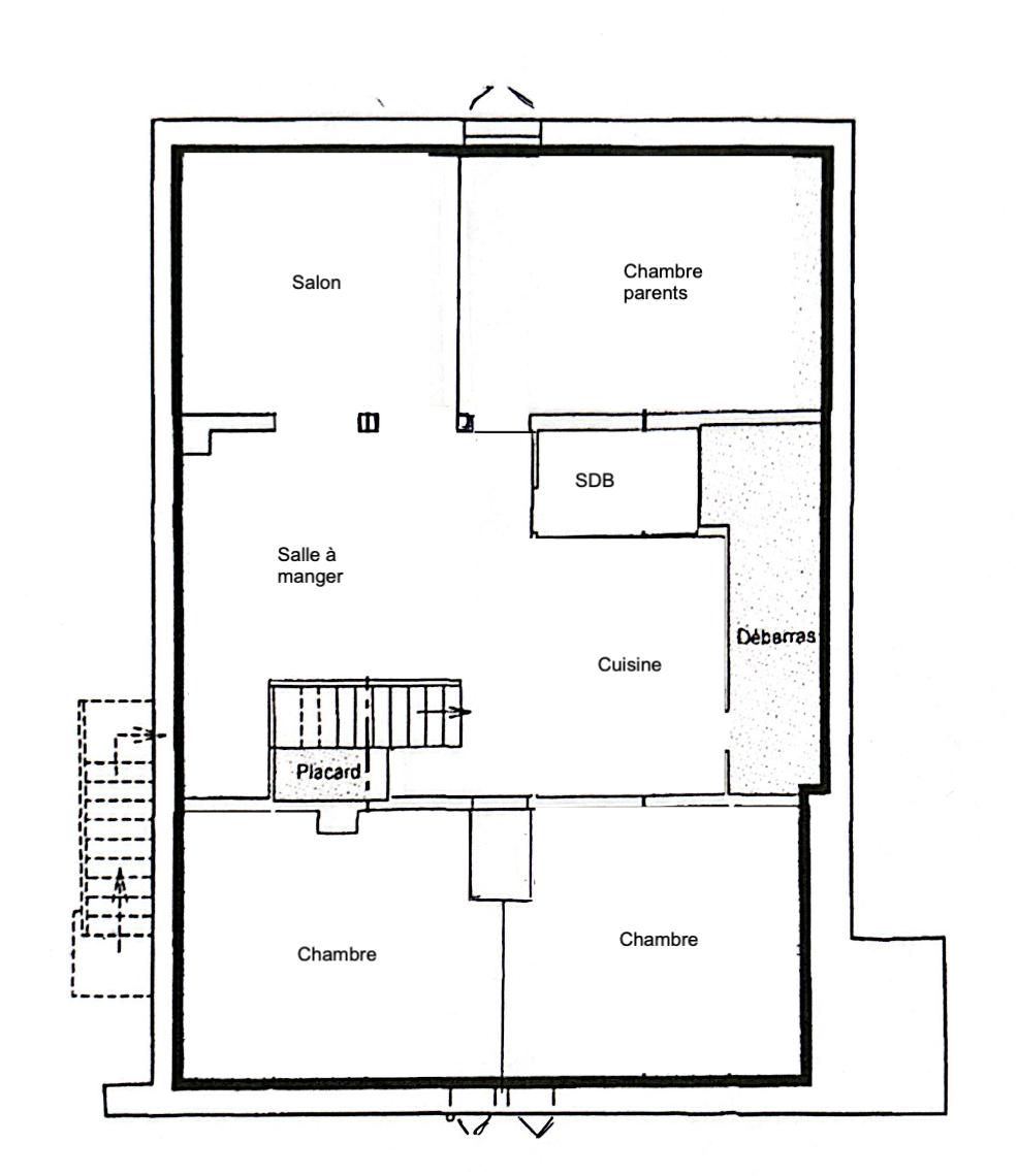
Développant environ 112 m² au sol pour 47 m² loi Carrez, ce bien séduit par ses volumes généreux et son atmosphère chaleureuse.
Aujourd’hui organisé en plusieurs pièces, il peut facilement être repensé en grand T2 ou en T3 optimisé, selon vos besoins et votre mode de vie.
Vous bénéficierez d’une entrée indépendante avec rangements, d’un espace de vie lumineux avec cuisine ouverte semi-équipée, ainsi que de différents aménagements possibles permettant de créer coin nuit, bureau ou chambres. Une salle de bains avec WC et de nombreux rangements complètent l’ensemble.
Ses atouts :
Esprit maison grâce à son entrée indépendante
Configuration modulable selon vos envies
Beaux volumes au sol
Climatisation réversible
Faibles charges : 20 € / mois
Une place de stationnement privative (seconde place tolérée par la copropriété)
Côté localisation :
Transports à 110 m
Écoles à 1,3 km
Commerces à 2,9 km
Plages à 25 minutes à vélo
Un bien idéal pour celles et ceux qui recherchent un logement à adapter à leur mode de vie, après quelques travaux permettant d’en révéler tout le potentiel.
