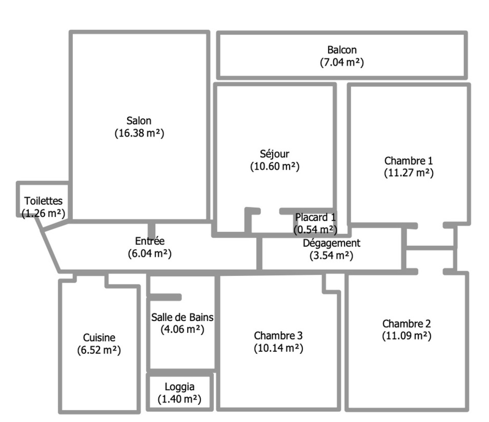
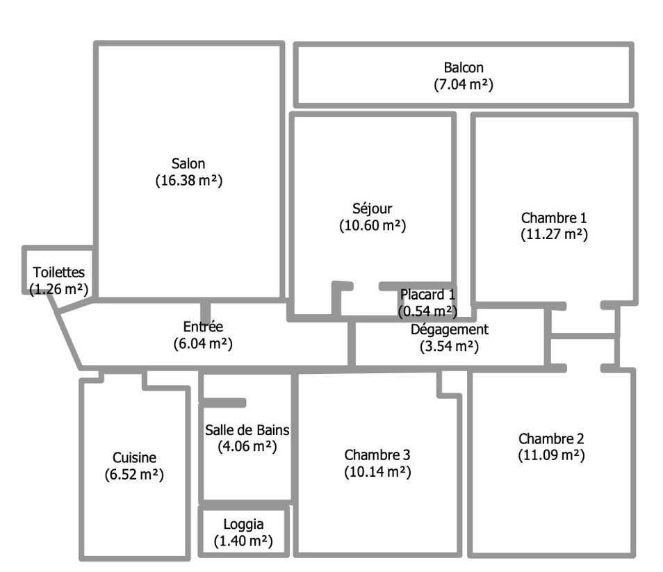
ANGLET BUSQUET/MONTAURY : Au 4ᵉ étage sur 5, au sein d’une résidence sécurisée bénéficiant de nombreux espaces verts, découvrez cet appartement T4/5 de plus de 80m² rénové.
Il se compose d’une agréable pièce de vie salon-salle à manger exposée ouest, ouvrant sur un balcon, idéal pour profiter des extérieurs mais également de beaux couchés de soleil.
Dans son prolongement, vous trouverez une cuisine entièrement équipée, complétée par un cellier/buanderie attenant offrant un espace de rangement supplémentaire.
Côté nuit, vous trouverez trois chambres avec placards, dont une avec accès au balcon. Une quatrième chambre peut facilement être aménagée selon vos besoins.
Vous apprécierez sa luminosité traversante Est-Ouest ainsi que ses nombreux rangements.
Une cave et un local deux-roues en rez-de-chaussée complètent ce bien.
Stationnement libre au sein de la résidence.
Emplacement central :
- Transports à 300 m
- Commerces à 400 m
- Écoles à 350 m
- Plages à 15 minutes à vélo
DPE D / GES D - Consomation réelle pour une famille de 4 personnes gaz & éléctricité 877€ par an.
Les informations sur les risques auxquels ce bien est exposé sont disponibles sur le site Géorisques.
