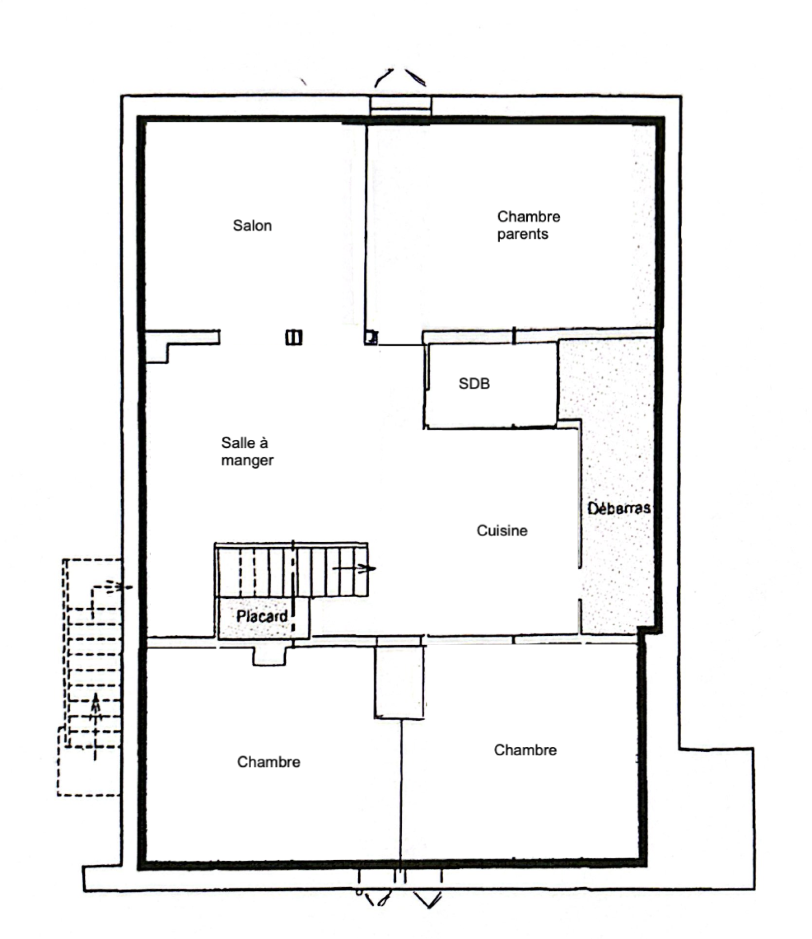
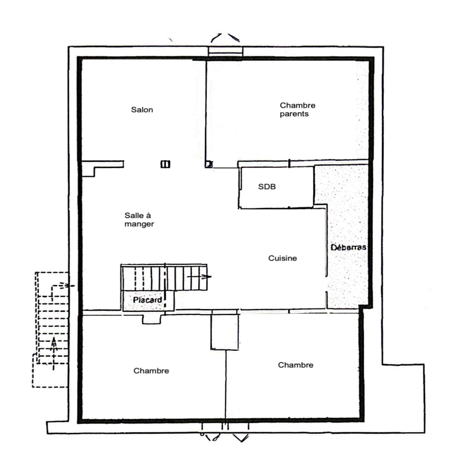
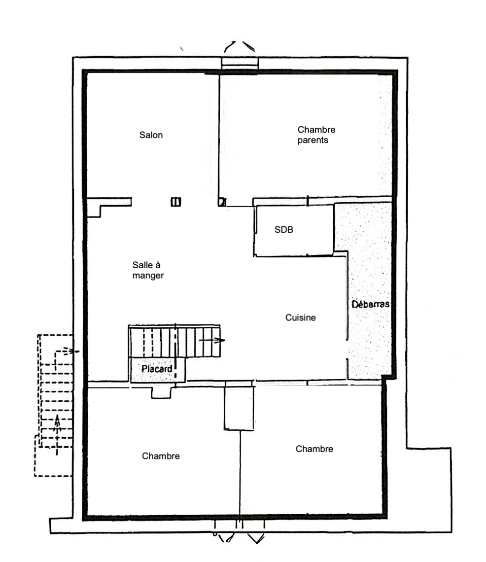
Au sein d’une authentique maison basque divisée en seulement trois lots, découvrez ce charmant T3/4 situé au dernier étage.
Lumineux et chaleureux, il séduit immédiatement par son caractère et ses beaux volumes (environ 113 m² au sol).
Vous bénéficierez d’une entrée indépendante avec rangements, d’un séjour baigné de lumière avec cuisine ouverte et équipée, de deux à trois chambres équipées de placards, ainsi que d’une salle de bain et de WC séparés. De nombreux rangements complètent cet ensemble.
Ses atouts :
·Appartement ressenti « maison »
·Une place de stationnement privative (plus une seconde place tolérée)
·Climatisation réversible
·Des charges très faibles : 20 €/mois
Côté secteur :
·Les commerces de bouches sont à 2,9km
·Les bus sont à 110m
·Les écoles sont à 1,3km
·Les plages sont à 25min à vélo
DPE : E – GES : B
Estimation des dépenses annuelles : entre 1 234 € et 1 670 €.
Les risques auxquels ce bien est exposé sont consultables sur le site Géorisques.
Honoraires à la charge du vendeur.
