Emplacement et potentiel !
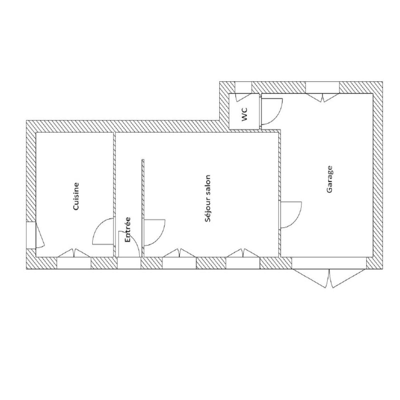
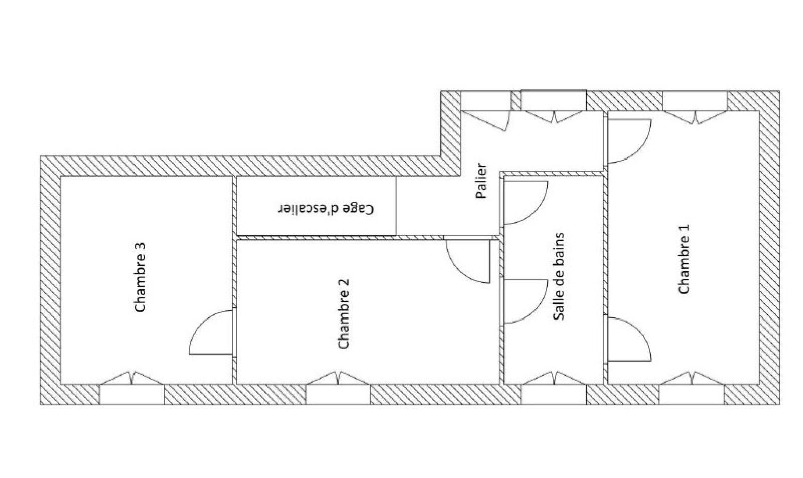
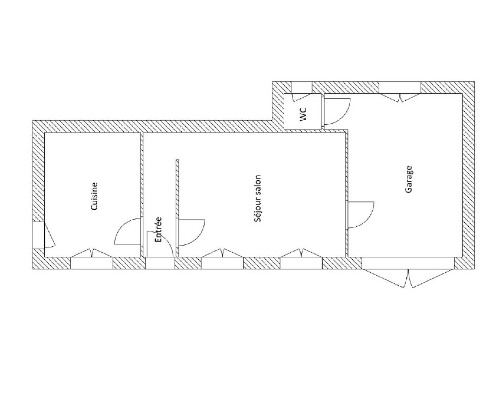
Maison de ville à rénover d'environ 85m². Composé d’une entrée, une cuisine indépendante, un séjour, un WC invité et un garage de 20m². L’étage offre 3 chambres et une salle de bain.
En complément, un patio / terrasse de 26m² et une cave de près de 30m² avec 2m60 de hauteur complètent l’ensemble.
L'ensemble nécessite une rénovation totale.
DPE en F . Estimations des couts annuels d’énergie du logement entre 2 110€ et 2910€ / an abonnement compris.
Plages de la côte des Basques à 300mètres, commerces de Beaurivage à 250mètres.
Les informations sur les risques auxquels ce bien est exposé sont disponibles sur le site Géorisques
