Idéalement située proche du centre-ville et de l'autoroute, dans une impasse au calme en bordure d'un espace naturel et boisé, découvrez cette grande maison familiale de 180m2 avec 6 chambres entièrement rénovée en 2018.
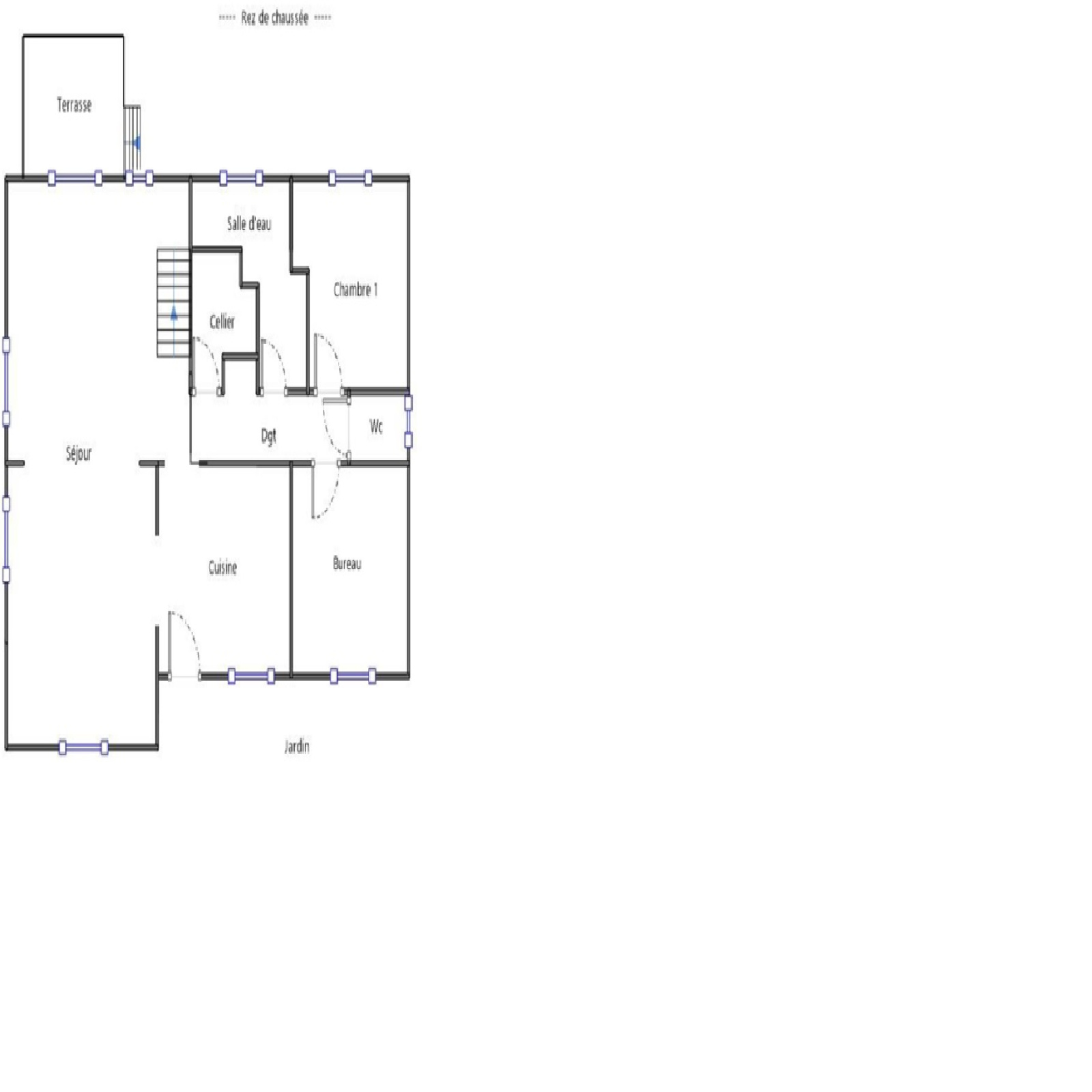
Au rez-de-chaussée, un très bel espace de vie de 65m2 avec cuisine équipée ouvrant sur deux terrasses exposée Sud et Nord, une arrière cuisine et buanderie, 2 chambres dont une avec son entrée indépendante, une salle d'eau avec douche à l'italienne et un WCindépendant.
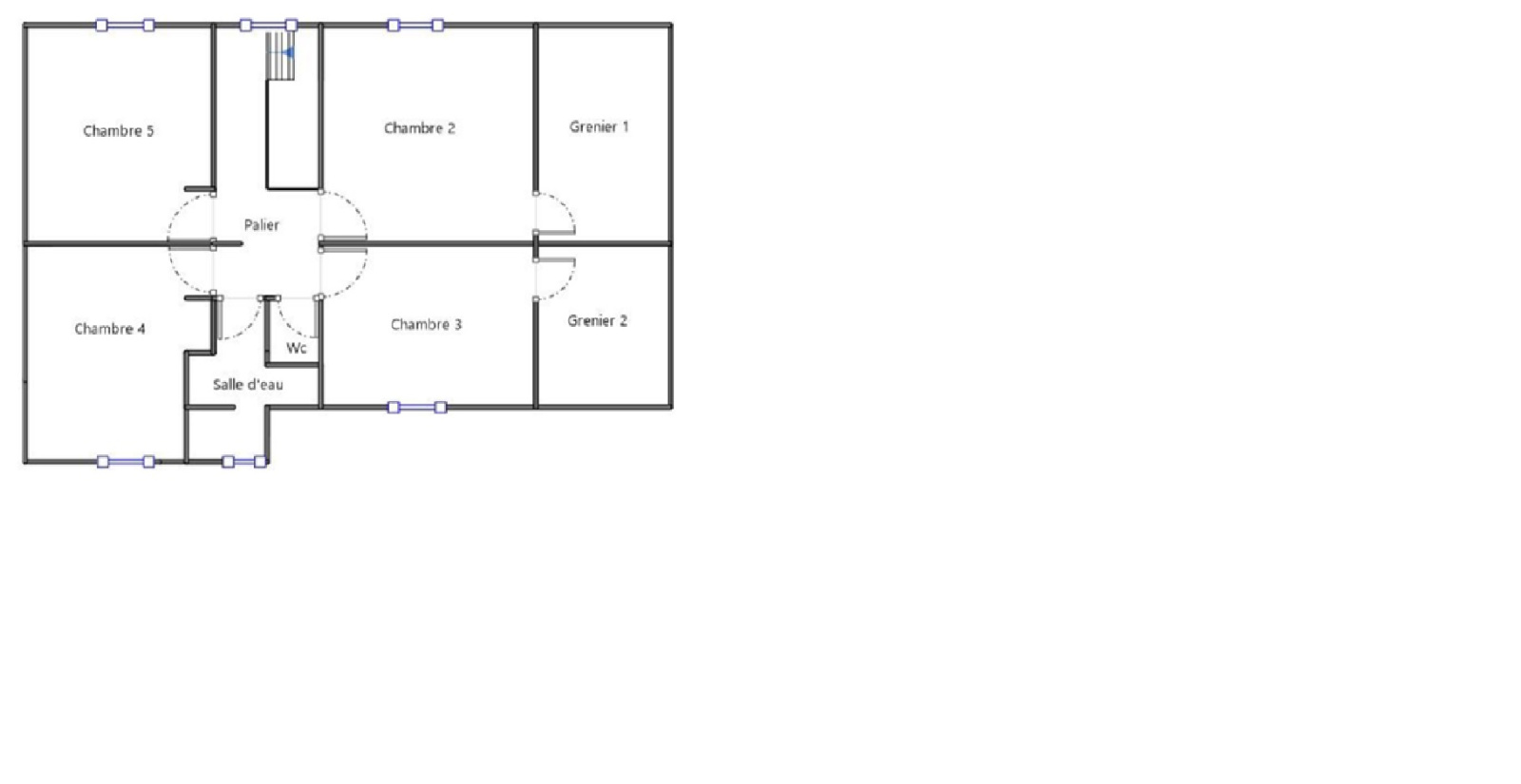
A l’étage, 4 chambres avec clim réversible, une salle d’eau et un toilette séparé.
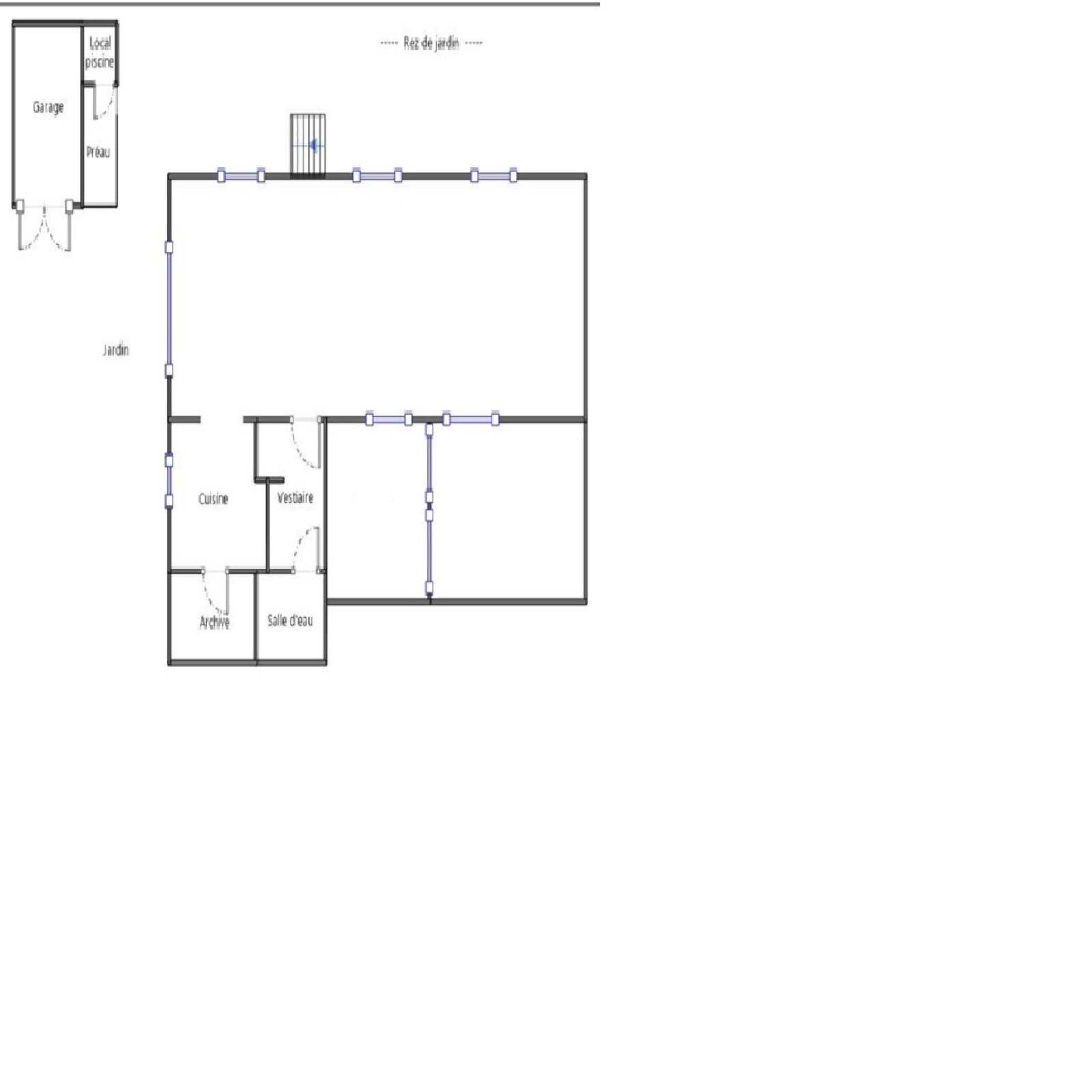
Au rez-de-jardin, un espace indépendant d'environ 100m2 disposant actuellement d'une salle d'eau, Wc et une cuisine pouvant être personnalisé selon vos envies: appartement, bureaux, salle de sports/jeux etc.
Un beau jardin entretenu, une piscine 8*4 chauffée et un garage indépendant complète l’ensemble.
Située à 600m de la ligne T2 de Tram’bus, vous pourrez aisément rejoindre le centre-ville de Bayonne et de Tarnos.
DPE C / GES C- Estimation des coûts annuels d'énergie du logement entre 2360 € et 3270 €/ an .
Les informations sur les risques auxquels ce bien est exposé sont disponibles sur le site Géorisques.
Honoraires charge vendeur. En co-exclusivité.
