Ce T2 situé en plein coeur de St Esprit offre un mode de vie tout à pied et un proximité immédiate des transports locaux (bus & trambus) et nationaux (gare TGV).
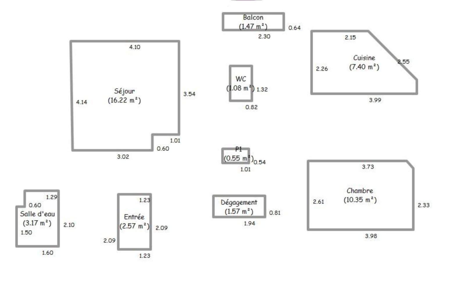
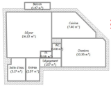
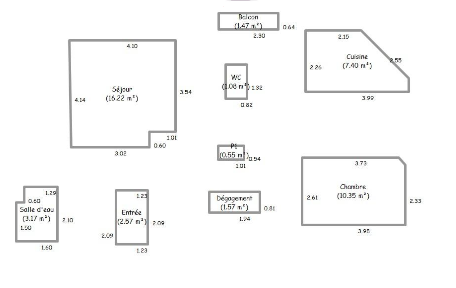
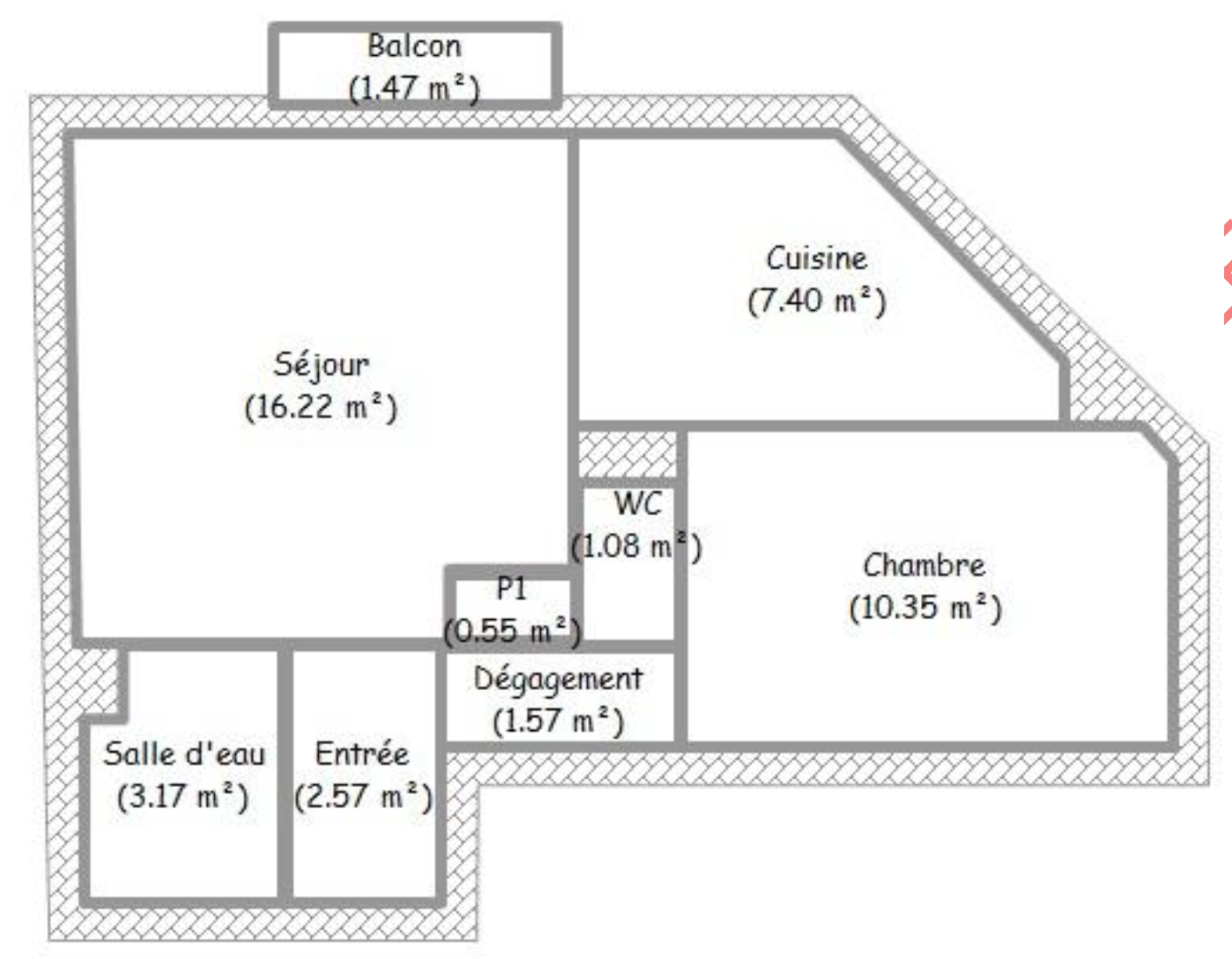
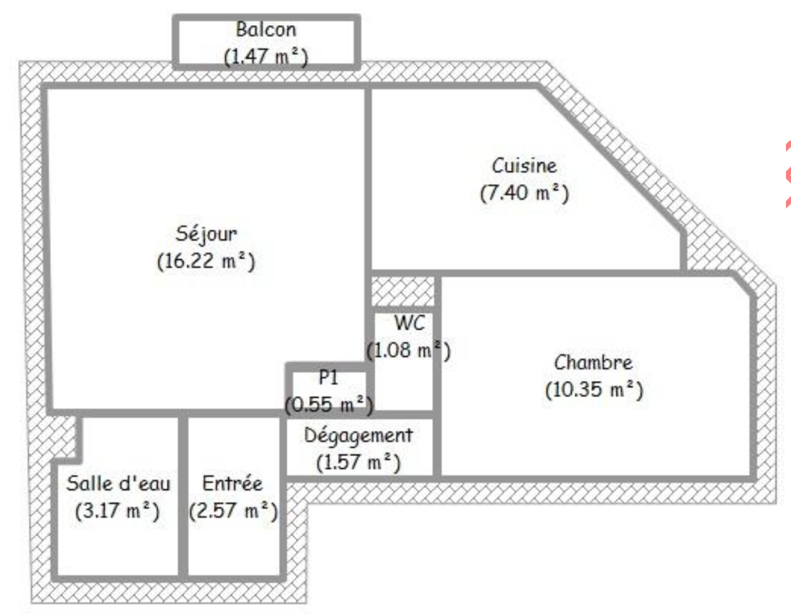
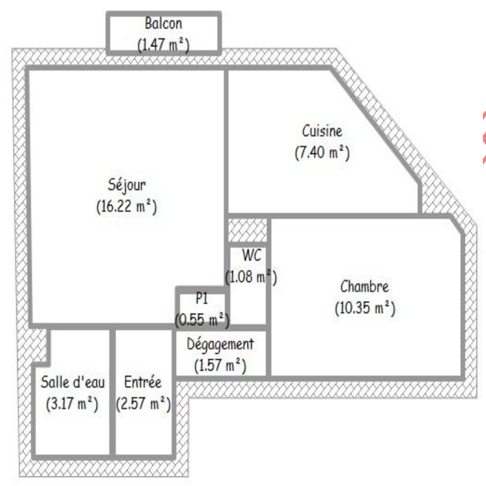
Au sein d'une copropriété entretenue, cet appartement offre une configuration sans perte de place, avec un séjour ouvrant sur un petit balcon, une cuisine dinatoire et un "coin nuit" avec chambre, WC séparé et Salle d'eau.
Après une belle rénovation (voir les suggestions d'aménagement dans les photos), il révelera tout son potentiel, que ce soit pour un projet d'accession à la propriété (avec les aides à la rénovation énergétique), pour un projet d'investissement locatif (joli rendement possible, à fortiori sur un projet de déficit foncier) ou pour un pied à terre Bayonnais (grâce à son emplacement très central).
A découvrir rapidement.
- Honoraires à charge acquéreur de 6,5 % TTC inclus soit un prix net vendeur de 169 015 €
- DPE en D, estimation des coûts annuels d'énergie du logement entre 860 € et 1 200 € / an abonnement compris.
- Les informations sur les risques auxquels ce bien est exposé sont disponibles sur le site Géorisques.
- Annonce rédigée par Nicolas KHAYAT, Agent Commercial, RSAC n° 505 359 216
Les informations sur les risques auxquels ce bien est exposé sont disponibles sur le site Géorisques
