Dans une copropriété au calme au pied du parc de Caradoc et à 1,5KM des commerces et du centre ville de Bayonne, venez découvrir cet appartement de 2016 au 4eme étage sur 6.
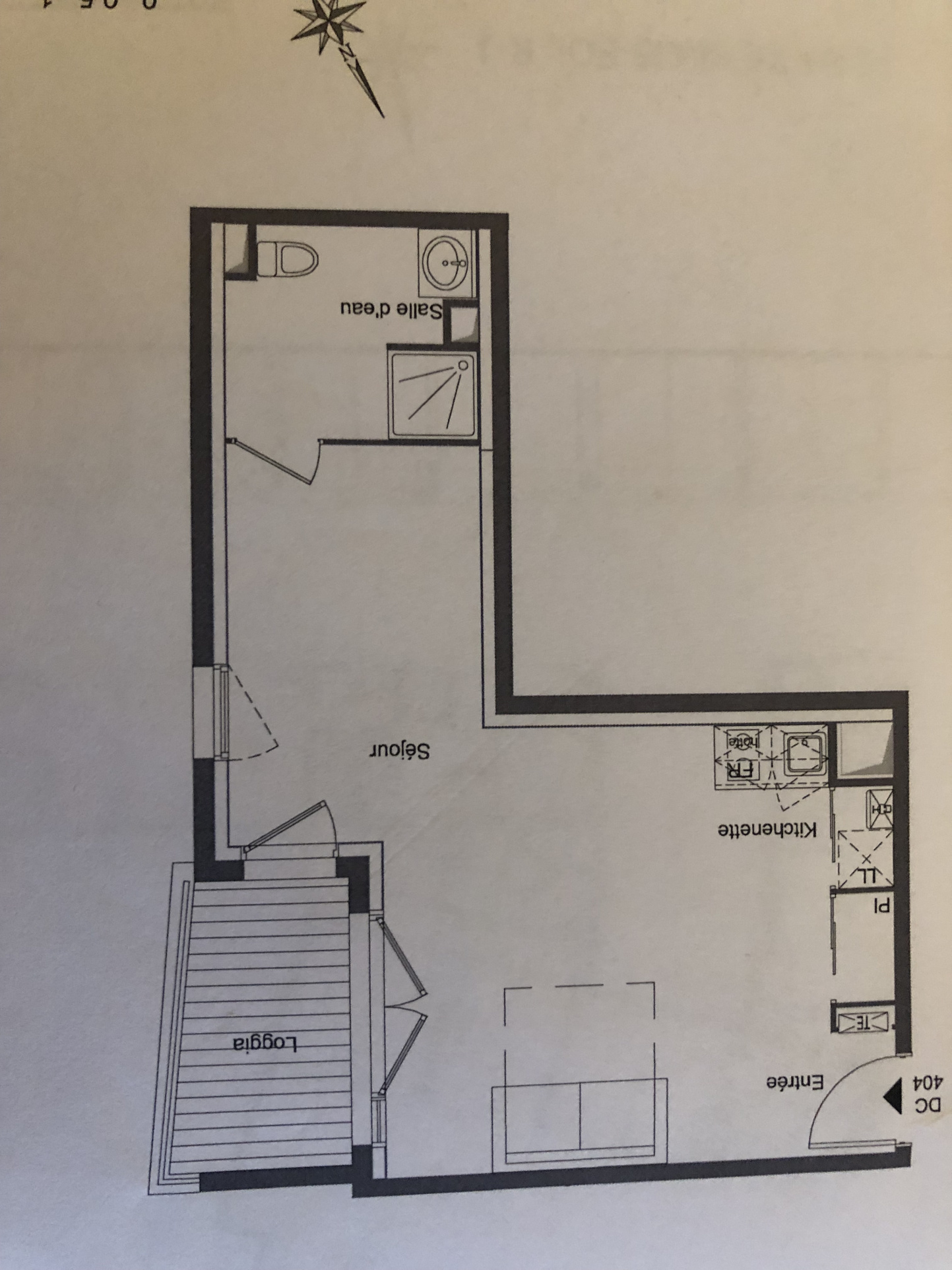
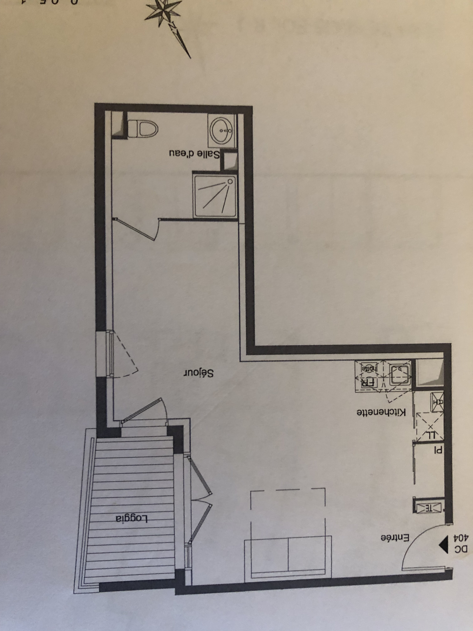
Doté d’une pièce de vie de 23m2 avec cuisine équipée ouverte, vous disposerez d’un coin nuit de 8,95M2 que vous pourrez fermer afin d'obtenir une chambre.
Vous bénéficiez d'un gande salle d'eau de 5,54m2 avec wc.
La pièce de vie et le coin nuit donne sur une terrasse de 5M2 exposée Est.
Un parking privatif en sous sol complète ce bien.
Appartement à visiter sans plus tarder.
DPE C/ GES C - Estimation des coûts annuels d'énergie du logement entre 410 € et 590€ / an
Honoraires charge acquéreur. prix FAI 174 900 euros dont 6,5% d'honoraires agence
Les informations sur les risques auxquels ce bien est exposé sont disponibles sur le site Géorisques : www.georisques.gouv.fr
