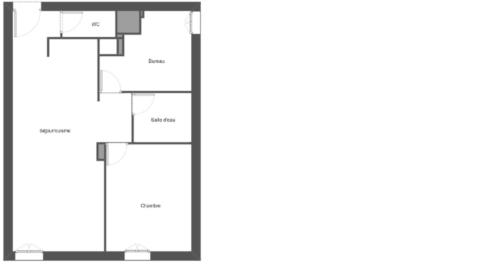
En plein cœur de Bayonne St Esprit, à proximité immédiate des commerces et du centre-ville, dans une petite copropriété bien entretenue, découvrez cet appartement T2bis rénové située au 2ème étage d'environ 42m2 optimisé.
L’entreé dessert un Wc invité, une belle pièce de vie de 21m2 avec cuisine entièrement équipée, un îlot et espace salon cosy exposé Sud.
L’espace nuit se compose d’une pièce pouvant servir de bureau ou de chambre (6.86m2) , une salle d’eau et une chambre avec placard.
Un confort de vie avec tout à pied, au calme, lumineux et en très bon état. Juste en dessous une boulangerie, des arrêts de bus et une superette, à 700m à pied de la gare de Bayonne.
DPE : D / GES : A – Estimation des coûts annuels d’énergie : entre 660 € et 950 €.
Honoraires charge acquéreur 198 000 € incluant 6.5% TTC d'honoraires.
Les informations sur les risques auxquels ce bien est exposé sont disponibles sur le site Géorisques.
