Page suivante
Page précédente
Bayonne (64100)

Appartement 4 pièce(s) 3 chambre(s) 80.8 m²

1
Balcon
Ascenseur
229 149 €
Réf 1324

BAYONNE – POLO-BEYRIS

Vente en nue-propriété (sans rente) – Usufruit conservé par une femme de 76 ans.

Saisissez cette opportunité rare d'investissement patrimonial avec une décote immédiate de 30% dans un cadre de vie agréable et recherché.

Situé au 2ᵉ étage (sur 3) d’une résidence intimiste, sécurisée et équipée d’un ascenseur, ce bel appartement T4 de plus de 80 m², bien entretenu, offre un mode de vie tout à pied grâce à sa proximité immédiate avec les commerces du quartier Polo-Beyris et les transports en commun offrant de belles prestations comme le double vitrage dans l'ensemble de l'appartement ainsi que les volets électriques.

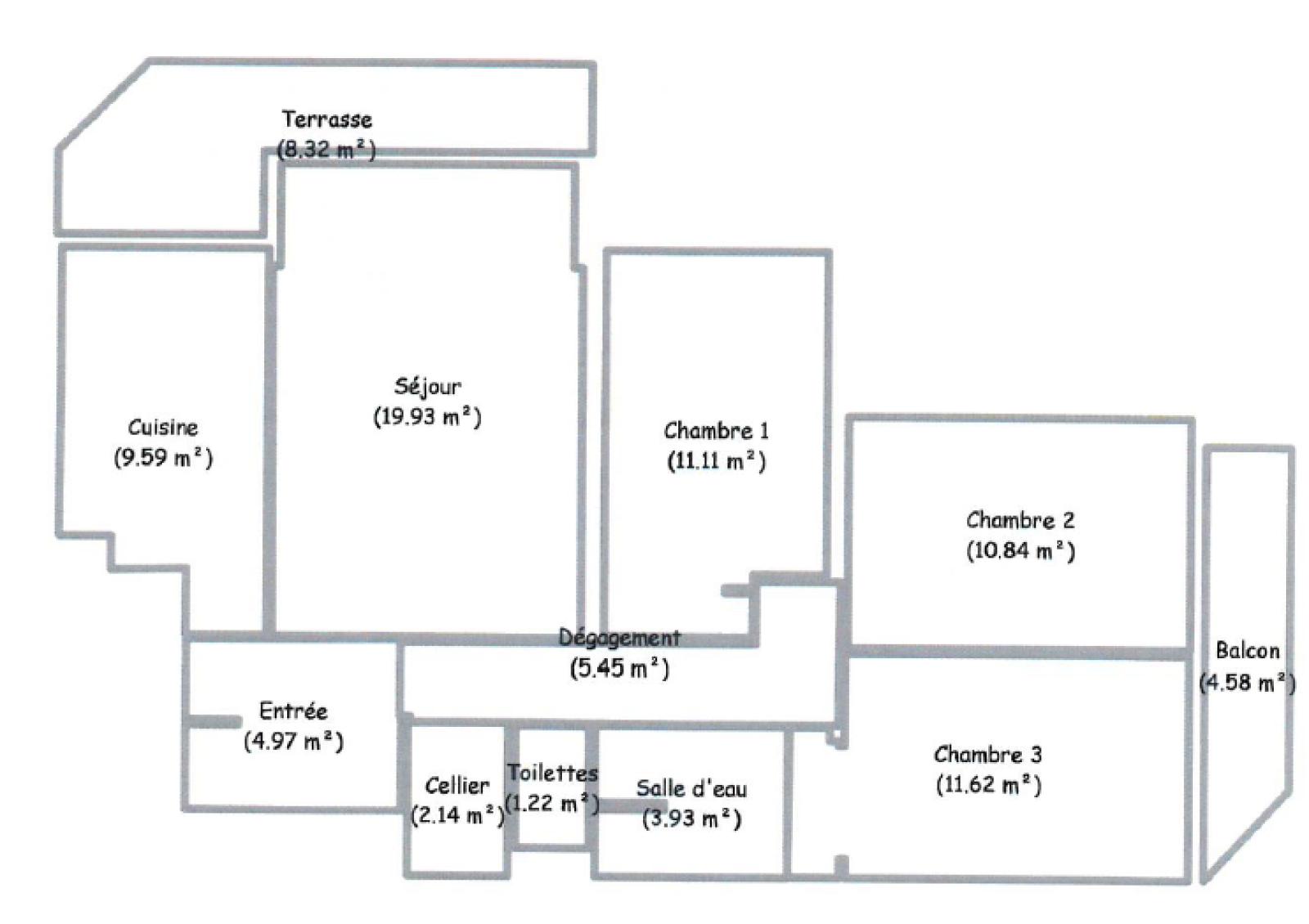
Il se compose d’une entrée avec placard, d'un cellier pour plus de rangement, d’un salon-séjour ouvrant sur une terrasse, d’une cuisine équipée profitant, elle aussi, d'un accès sur la terrasse.

Côté nuit : trois chambres avec rangements (dont deux donnant sur un balcon), une salle d’eau, un WC indépendant complètent ce bien fonctionnel.

Environnement :

Ligne de bus 5 à 450 m

Commerces à 500 m

Centre-ville de Bayonne à 4,7 km

DPE : C / GES : C // Aucune anomalie électrique, aucune anomalie gaz.
Estimation des coûts annuels d’énergie : entre 930 € et 1 330 €.

Les informations sur les risques auxquels ce bien est exposé sont disponibles sur le site Géorisques.

Charges de copropriété : 1 252 €/an, soit 313€ par trimestre dont 141€ restant à la charge de l'occupante.
Honoraires à la charge du vendeur.

Vous ne connaissez pas encore la vente en nue-propriété ?
Nous sommes à votre disposition pour répondre à toutes vos questions et vous accompagner dans votre projet de développement patrimonial.

Bilan énergétique

Diagnostics énergetiques
A propos de ce bien Caractéristiques de ce bien
  • Surface 80,80 m²
  • carrez 80,80 m²
  • séjour 19,93 m²
  • 3 chambre(s)
  • 1 salle(s) d'eau
  • cuisine séparée (équipée)
  • 2ème étage
  • 3 étage(s)
  • ascenseur
  • balcon
  • terrasse

Info copro

Copropriété
  • Copropriété Oui
  • Lot n° 15
  • Nombre de lots 1

Financier

Informations financières
Prix de vente 229 149 € Les honoraires d'agence seront intégralement à la charge du vendeur
Charges 104 €
Taxe foncière annuelle 1 121 €

Simulation

Calcul des mensualités
* Champs obligatoires
JULIE LUCAS Négociatrice