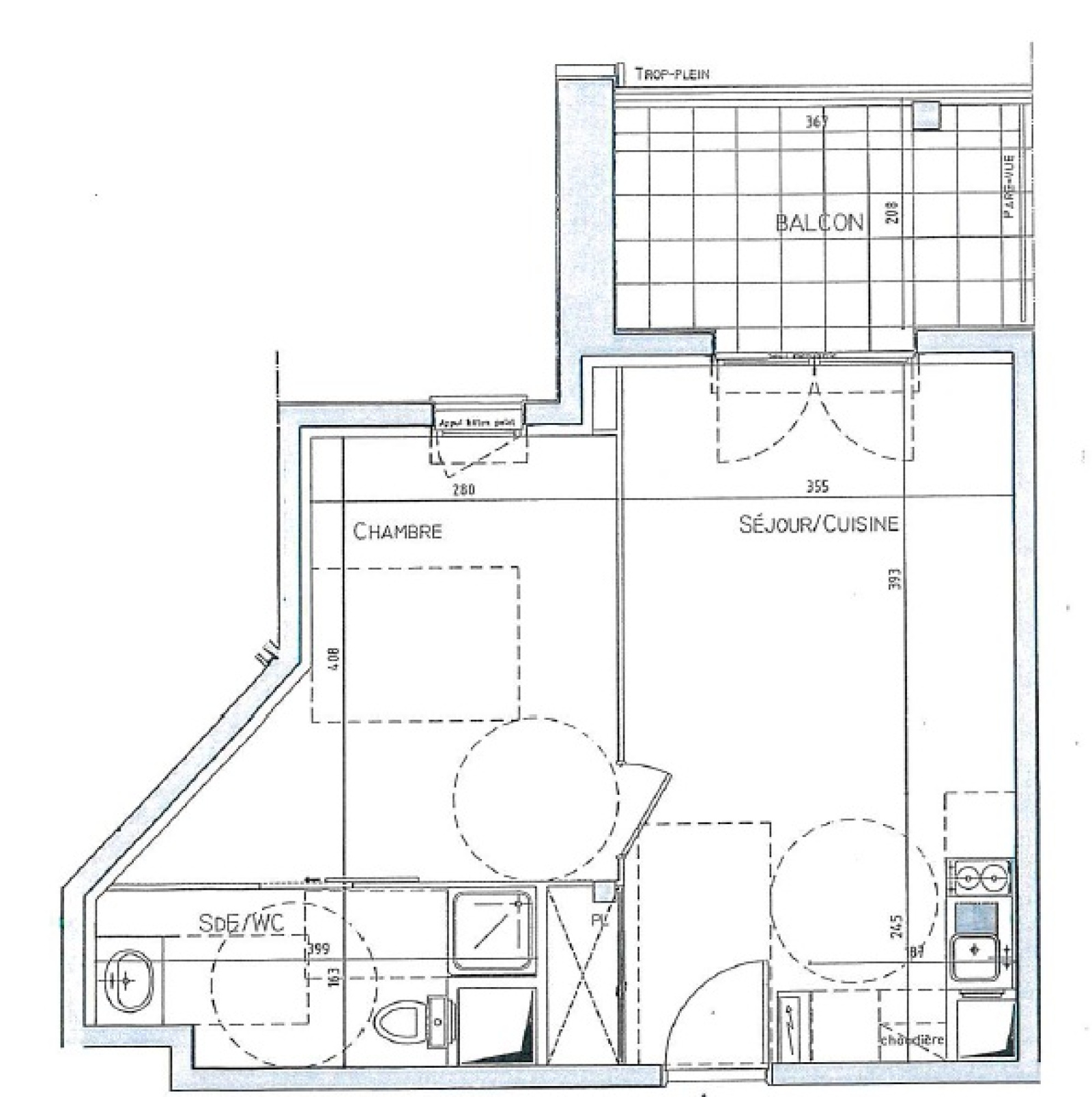
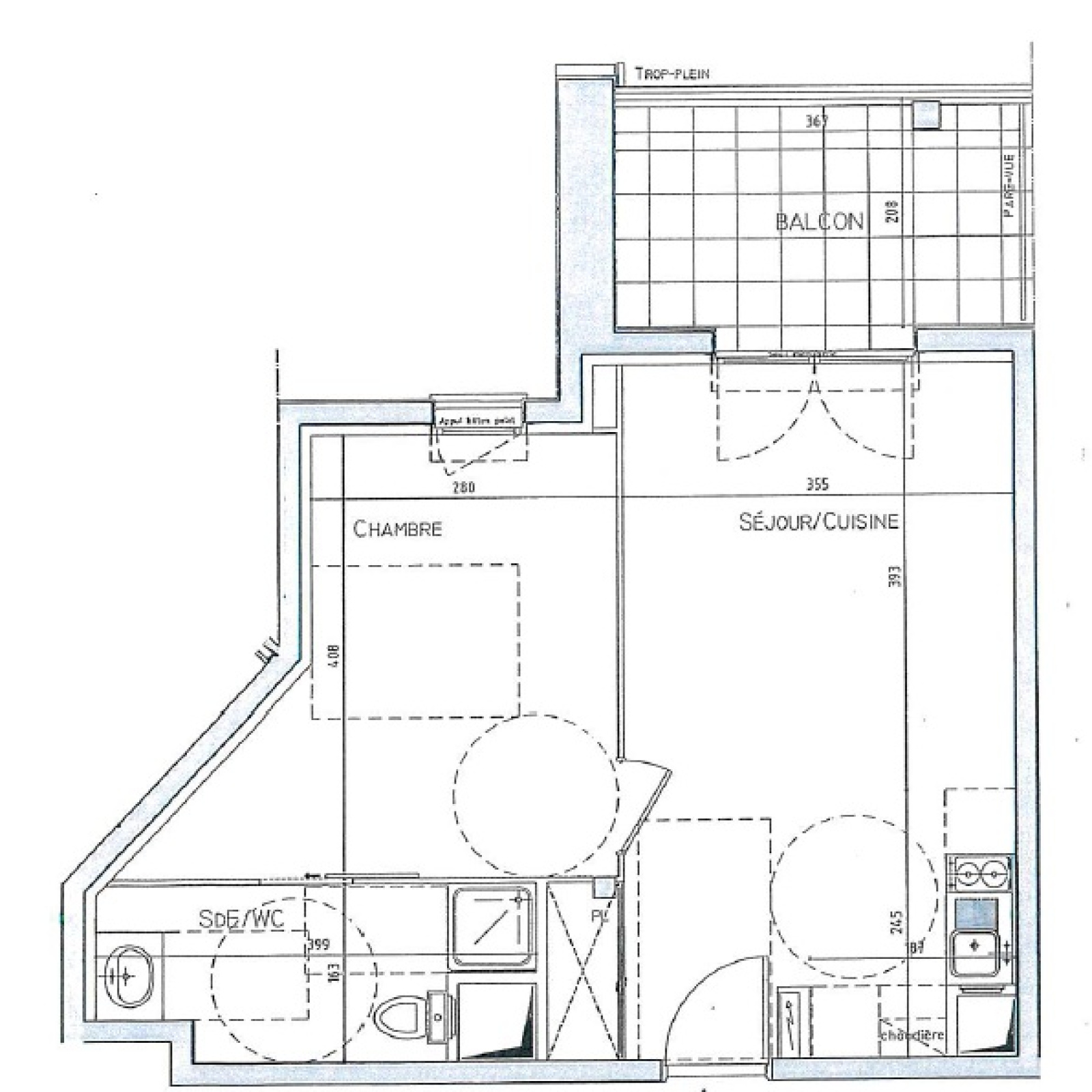
Au calme d’une rue peu passante, au sein d’une résidence sécurisée livrée en 2013, au 2ème et dernier étage avec ascenseur, appartement de type 2 d’environ 42m².
Composé d’une entrée avec placards, une cuisine aménagée ouverte sur le séjour donnant sur une terrasse exposée Ouest.
Une chambre de 13m² et une salle d’eau avec WC.
L’appartement est complété d’une place de parking en sous sol et une place de parking extérieure.
A 300m des commerces presse, pharmacie, superette, trinquet, terrain de jeu, tennis, mairie. Arret de bus au bout de l'allée.
Actuelement loué, l'appartement sera disponible et libre de toute occupation au plus tard le 25 septembre 2025 (congé déjà envoyé)
DPe en C - Estimation des couts annuels d'énergie du logement entre 440 € et 650 € / an abonnement compris.
Informations sur les risques disponibles sur le site Géorisques.
Honoraires charge Acquéreur, les honoraires de 12 000 € sont inclus dans le prix affiché, soit 200 000 € Net Vendeur.
