À seulement 2 km du centre-ville et des plages, découvrez cette maison familiale pleine de charme, nichée dans un environnement verdoyant sur un terrain de 820 m².
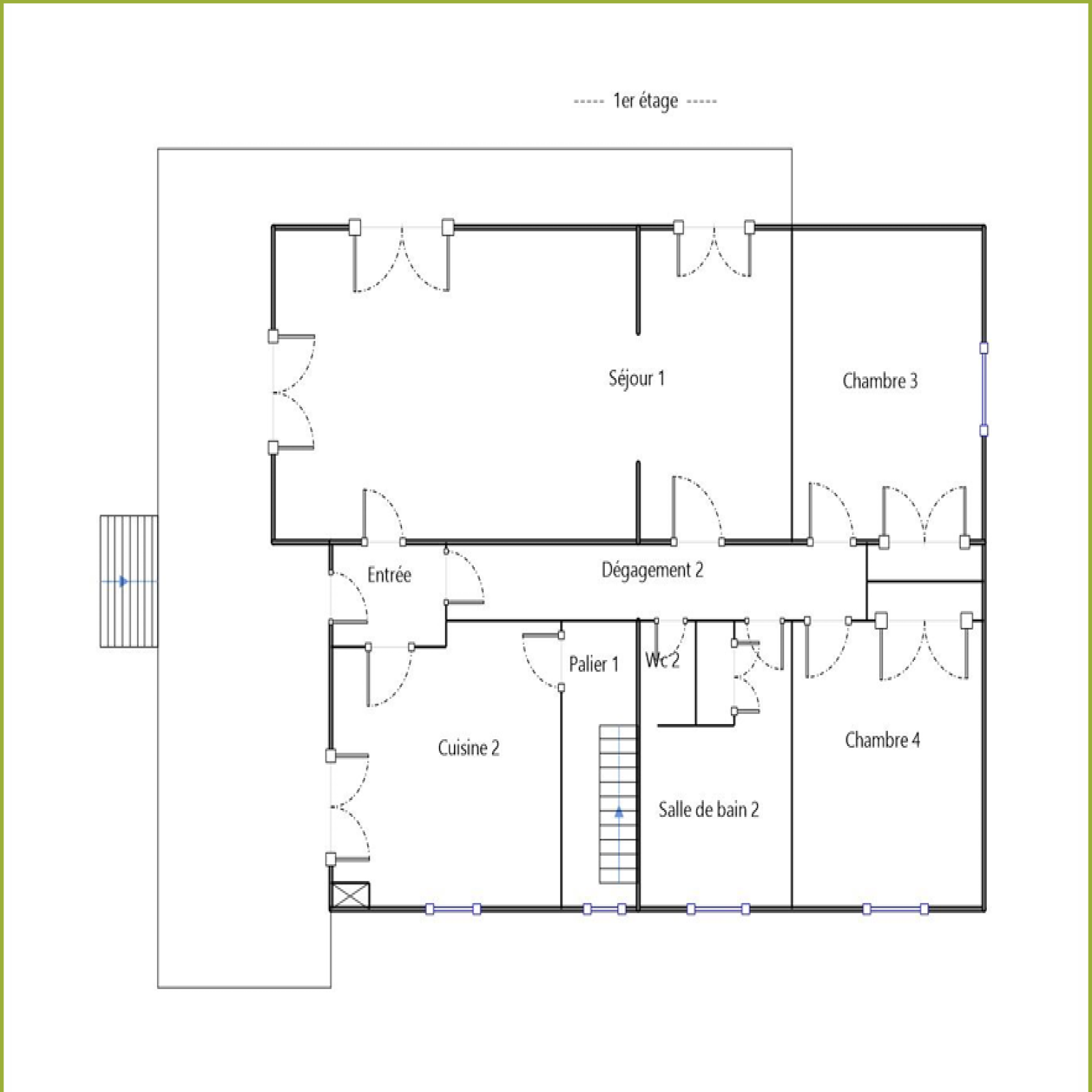
Le séjour traversant, baigné de lumière grâce à sa double exposition Sud et Ouest, offre un bel espace de vie avec cheminée et balcon. La cuisine indépendante et lumineuse, s’ouvre sur une agréable terrasse idéale pour les repas en extérieur.
L’espace nuit comprend deux chambres avec placards, (possibilité d'une 3ème chambre), une salle de bains avec baignoire et douche, ainsi qu’un WC indépendant.
En rez-de-jardin, un appartement T3 avec entrée indépendante offre de multiples possibilités : accueillir la famille, recevoir des amis ou développer un projet locatif.
Les combles aménageables laissent entrevoir un beau potentiel d’agrandissement, et le garage de plus de 25 m² complète cet ensemble.
Maison bien entretenue, à rafraîchir selon vos goûts, une opportunité rare à saisir sur le secteur !
