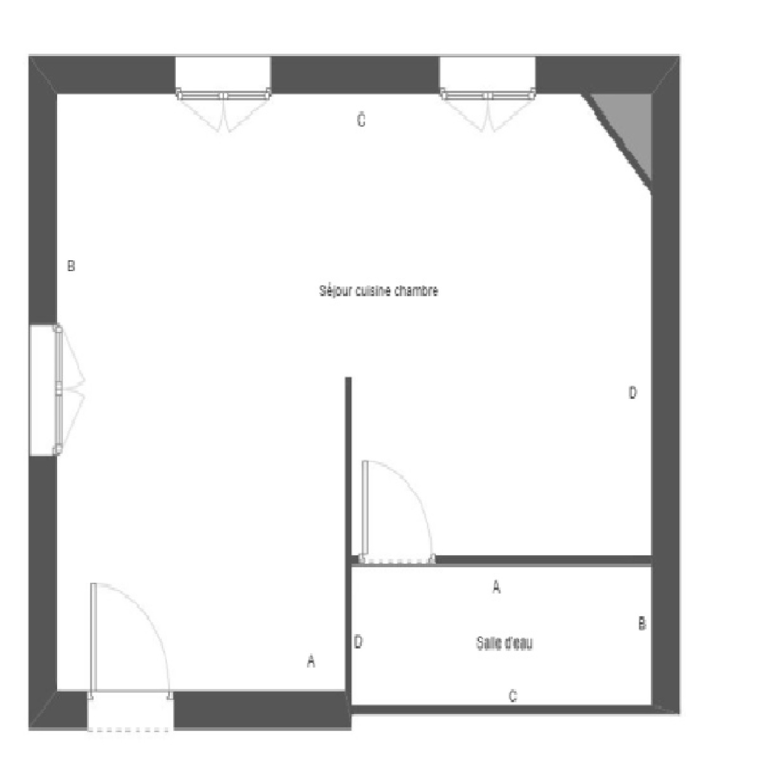
Emplacement idéal dans une bâtisse de caractère: plages à pieds, place des 5CANTONS, commerces et transports, découvrez ce charmant spacieux T1 de 28m2 pouvant être facilement transformé en T2. Possibilité de 2 couchages, cet appartement convient parfaitement au primo accédant, investisseurs et pied à terre.
Faibles charges: 55€ env/mois.
DPE E / GES B - Estimation des coûts annuels d'énergie du logement entre 556 € et 752 € / an.
Honoraires charge vendeur.
Les informations sur les risques auxquels ce bien est exposé sont disponibles sur le site Géorisques.
