Maison indépendante de 1980, implantée sur une parcelle de 1127 m²
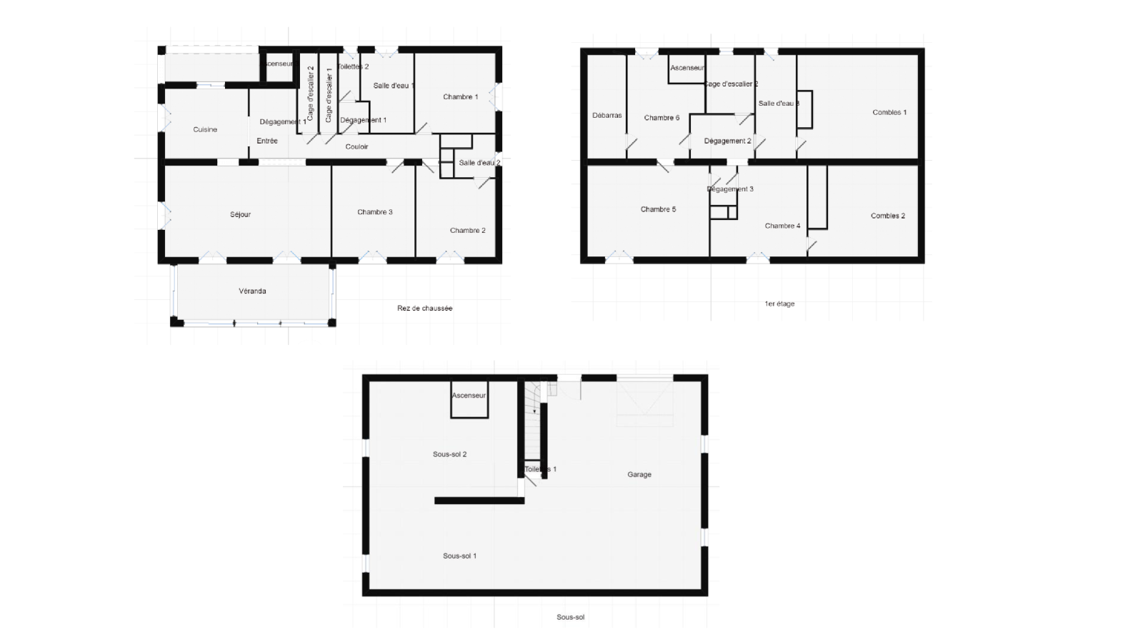
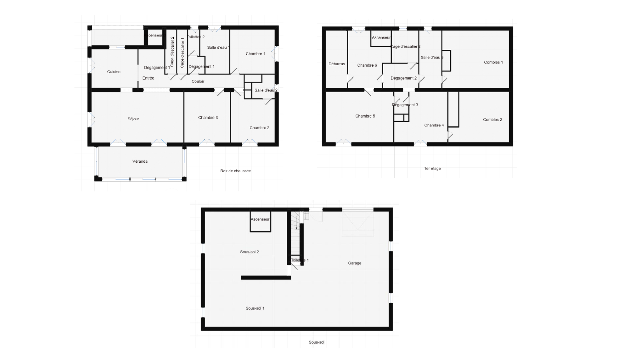
Construite sur 3 niveaux :
Un sous-sol de 120 m² avec buanderie, coin douche et accès à l'ascenseur qui distribue tous les paliers.
Le rez-de-chaussée, accessible par l'ascenseur, composé d'un salon donnant sur la véranda chauffée et exposée au sud, une cuisine équipée, 3 spacieuses chambres dont une avec sa salle d'eau privative, une salle d'eau complémentaire et un wc.
Le 1 er étage comporte deux grandes chambres (16 et 25 m²), un espace bureau et rangement et une salle d'eau avec wc.
Cette maison est implantée au calme d'une impasse d'un quartier recherché d'Anglet, commerces, écoles, transports, place de Quintaou, complexe El HOGAR à proximité...
DPE C et GES C. Estimation des couts annuels d’énergie du logement entre 554 € et 750 €. Prix moyens des énergies indexés sur l'année 2021 (abonnements compris)
Honoraires charge vendeur de5% inclus dans le prix.
Annonce rédigée par Patrice CAMBAS RSAC 831341359000.
Les informations sur les risques auxquels ce bien est exposé sont disponibles sur le site Géorisques.
Ses plus ? un terrain arboré au calme, un ascenseur,
L’ensemble est situé proche de toutes les commodités (école, commerce, transports).
