Au calme d’une impasse du quartier des fleuristes, sur environ 440m² de terrain, villa jumelée d’environ 180m² utiles 163m² carrez.
Composée d’une belle entrée avec placard, un séjour donnant sur une terrasse plein Sud, un coin lecture et cuisine semi ouverte. L’arrière-cuisine donne accès à une seconde terrasse au nord. 1 chambre et un bureau, une salle de bain et des WC invité complètent de rez de chaussé.
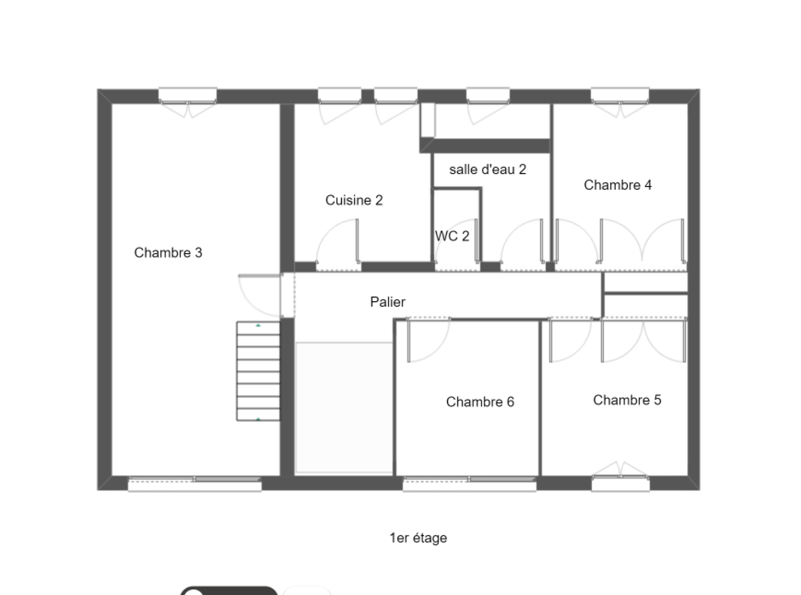
L’étage offre 4 chambres dont une de plus de 20m², une salle de bain, des WC séparés et une pièce pouvant être aménagée en seconde salle de bain.
L’ensemble est parfaitement entretenu, double vitrage, électricité aux normes, combles isolés, un rafraichissement, modernisation est à prévoir pour certaines pièces.
Un cabanon, un carport et plusieurs places de stationnement complètent le tout.
Cet ensemble fait partie d’une petite copropriété aux faibles charges (45€/mois).
Idéal pour une grande famille, possibilité d’un revenu locatif sur une partie de la maison.
Ecoles, commerces, bus à pied.
Honoraires charge vendeur.
