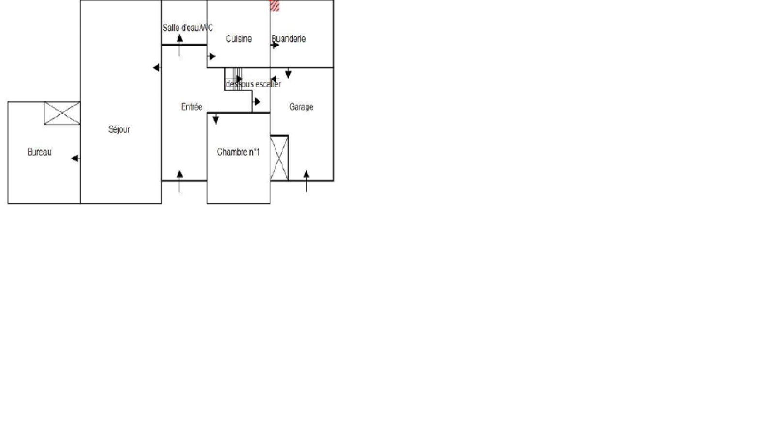
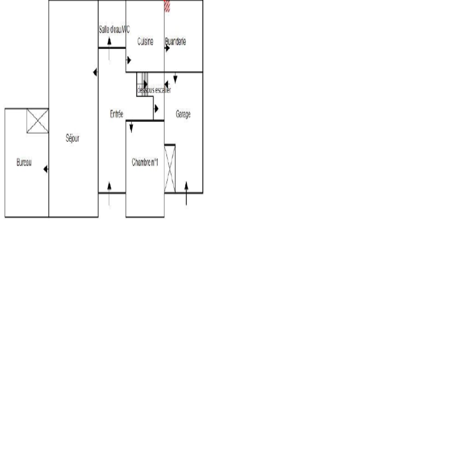
Au cœur d'ANGLET , sur une parcelle de 800 m² pouvant accueillir une piscine, découvrez cette villa traditionnelle basque (construite sur un vide sanitaire), composée d'une large entrée, un séjour traversant de plus de 45 m², une cuisine séparée et son arrière cuisine, une chambre avec sa salle d'eau complètent le rez-de-chaussée.
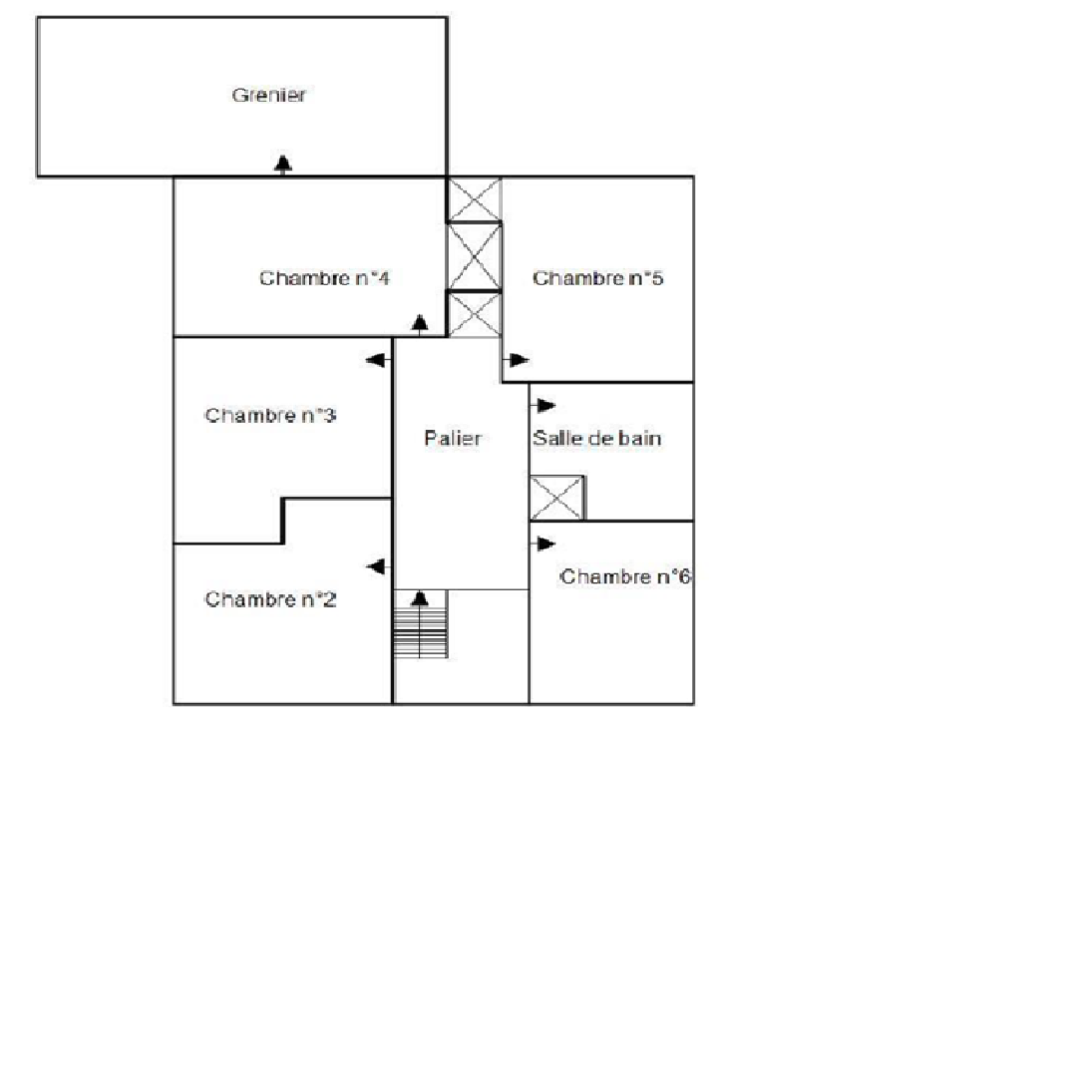
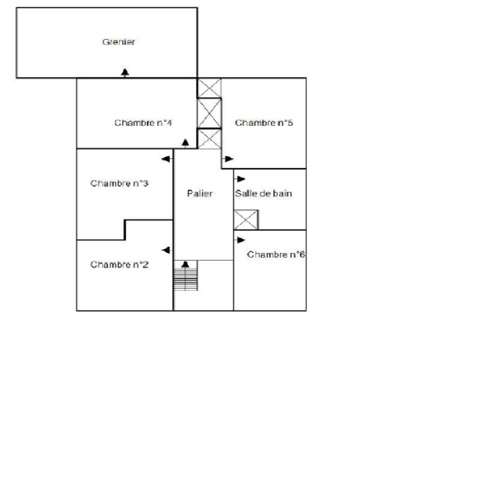
L'étage offre 4 chambres et une salle de bains. Idéalement située au calme, cette maison est équipée de double vitrage, de chauffage au gaz et de l'électricité aux normes, beaucoup de charme et de potentiel après rafraîchissement .Un garage, une cave et possibilité de stationner des véhicules sur la propriété.Toutes les commodités (bus, écoles, marché et commerces) à pied.
Honoraires charge vendeur.
