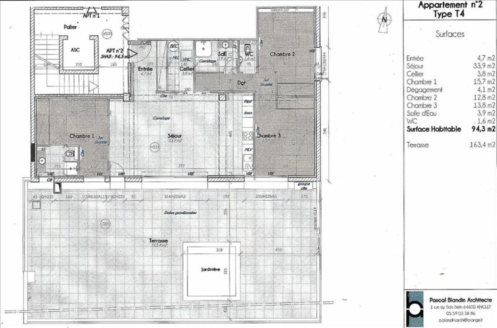
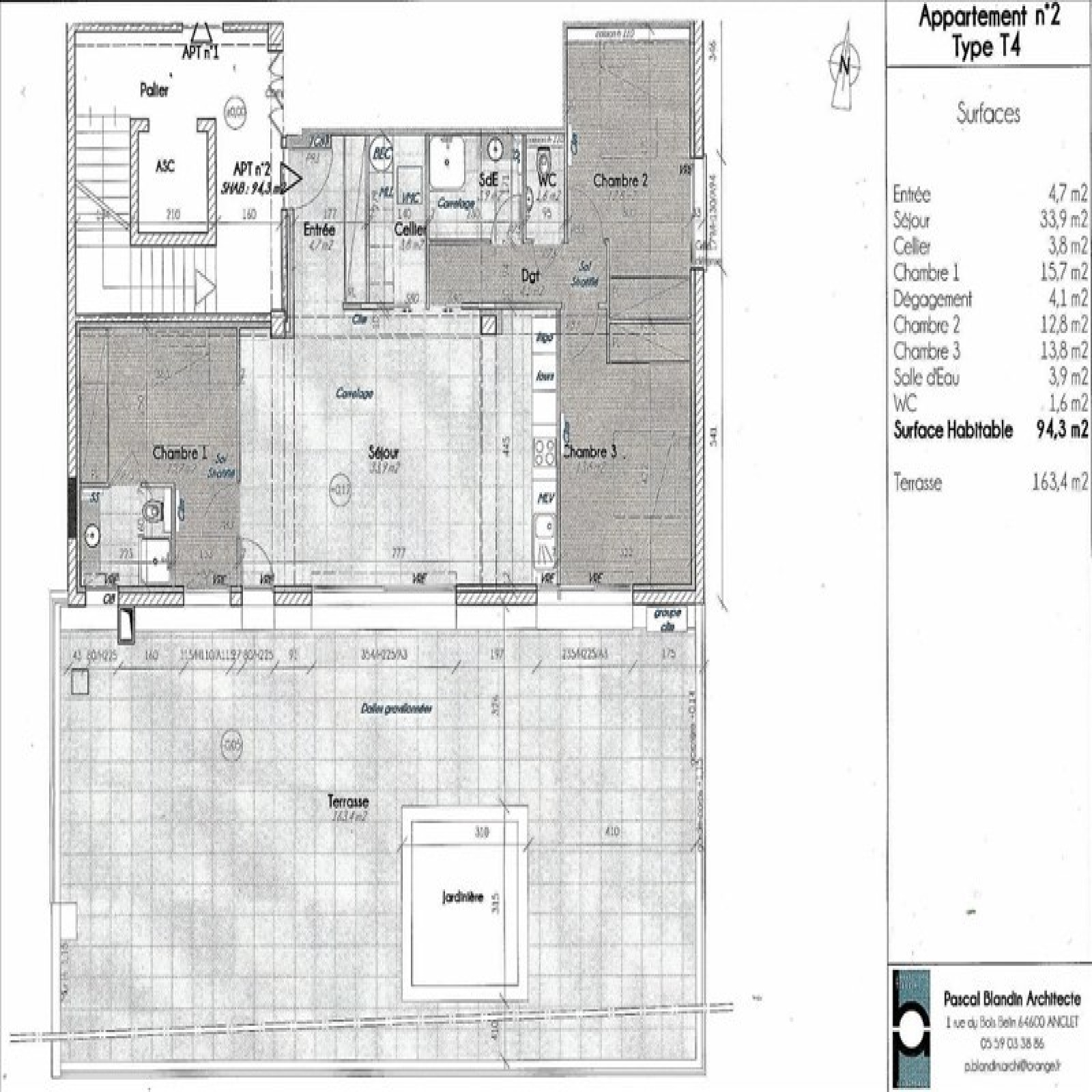
ANGLET EXCLUSIVITE~Appartement T4, entièrement rénové par architecte de 93 m² situé au coeur d'Anglet avec une très belle terrasse Sud de 163m², 3 expositions, ample séjour lumineux cuisine américaine,1 chambre parentale, 2 grandes chambres, salle d'eau, salle de bain, 2wc. Stationnement : 2 parkings en sous-sol.
Bilan énergétique
Diagnostics énergetiques
DPE ANCIENNE VERSION
A propos de ce bienCaractéristiques de ce bien
Surface 93 m²
carrez 93 m²
séjour 33 m²
3 chambre(s)
1 salle(s) d'eau
2 niveau(x)
1er étage
ascenseur
terrasse
Financier
Informations financières
Les honoraires d'agence seront intégralement à la charge du vendeur
On aimerait vous accompagner pendant votre visite.
En poursuivant, vous acceptez l'utilisation des cookies par ce site, afin de vous proposer des contenus adaptés et réaliser des statistiques !
Paramétrer
Cookies fonctionnels
Ces cookies sont indispensables à la navigation sur le site, pour vous garantir un fonctionnement optimal. Ils ne peuvent donc pas être désactivés.