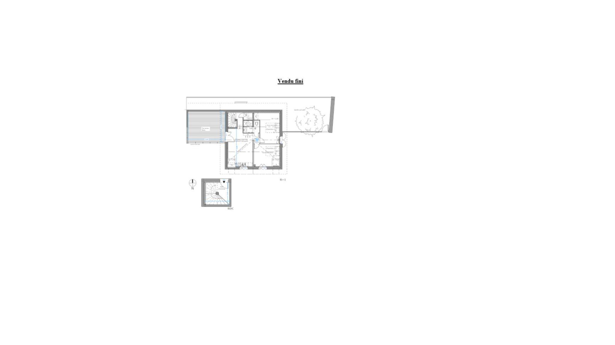
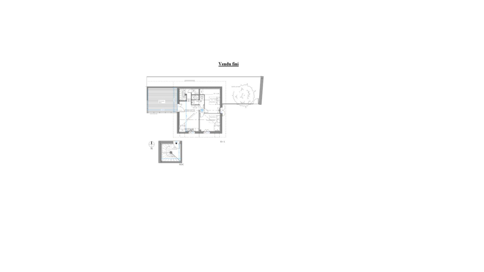
Dans une maison de caractère divisée en trois appartements au sein d'une petite copropriété, découvrez ce superbe appartement T3 optimisé de 48 m² situé en dernier étage.
Il peut être vendu en plateau, vous permettant de l'aménager à votre goût, ou entièrement rénové pour emménager sans travaux.
Vous profiterez d'une terrasse de plus de 24 m² exposée Sud et Ouest et d'une place de parking privative.
Les prestations sont soignées : chauffage électrique, double vitrage, climatisation réversible dans la pièce de vie composée d'un salon lumineux avec double exposition (sud et Ouest et d'une cuisine ouverte tournée vers l'extérieur.
Idéal pour un projet sur mesure ou un emménagement avec travaux finis, prévoir un délais.
Emplacement idéal: proche de toutes commodités, pistes cyclables allant à la plage (-10 mn à vélo), grands axes et ligne de bus 5 en face allant de Bayonne à Biarritz.
Contactez-nous pour organiser une visite et obtenir plus d'informations.
Prix public : 399 900 € FAI (honoraires 5.23 % TTC à la charge de l'acquéreur, soit un prix net vendeur de 380 000€). DPE estimatif (à valider) C.
Les informations sur les risques auxquels ce bien est exposé sont disponibles sur le site Géorisques.
