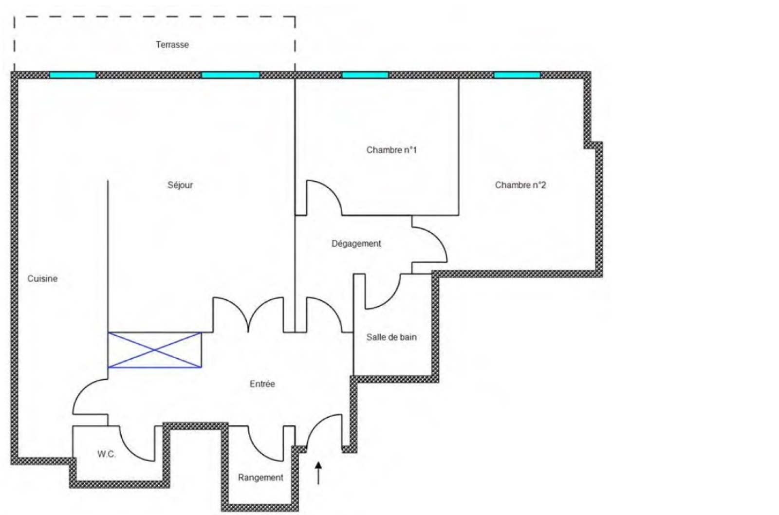
Situé dans un emplacement central à proximité des axes, transports et des commerces, venez découvrir cet appartement T3 de 71.45 m² entièrement rénové, situé 2ème et dernier étage d’une copropriété à taille humaine, sans ascenseur, entourée d'un écrin de verdures.
Vous serez séduit par sa belle pièce de vie de 44m², baignée de lumière et sa cuisine américaine entièrement équipée, donnant sur une agréable terrasse en long avec une vue dégagée.
Cet appartement se compose de deux chambres confortables, d'une salle de bain moderne, d'un WC séparé et d'un cellier.
Facilité de stationnement et local vélo au sein de la copropriété.
Appartement coup de coeur, entièrement rénové avec des matériaux de qualité et un mobilier sur-mesure.
Possibilité d'acquéreir un garage fermé en option pour plus de confort.
Honoraires charge vendeur.
DPE D/ GES D entre 1180€ et 1 640€. Année de référence 2024.
Les informations sur les risques auxquels ce bien est exposé sont disponibles sur le site Géorisques
