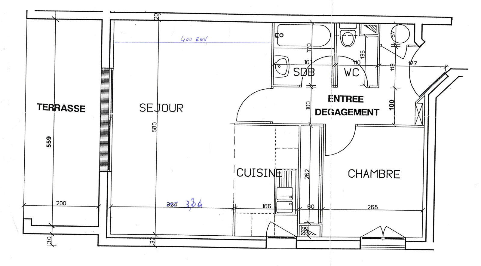
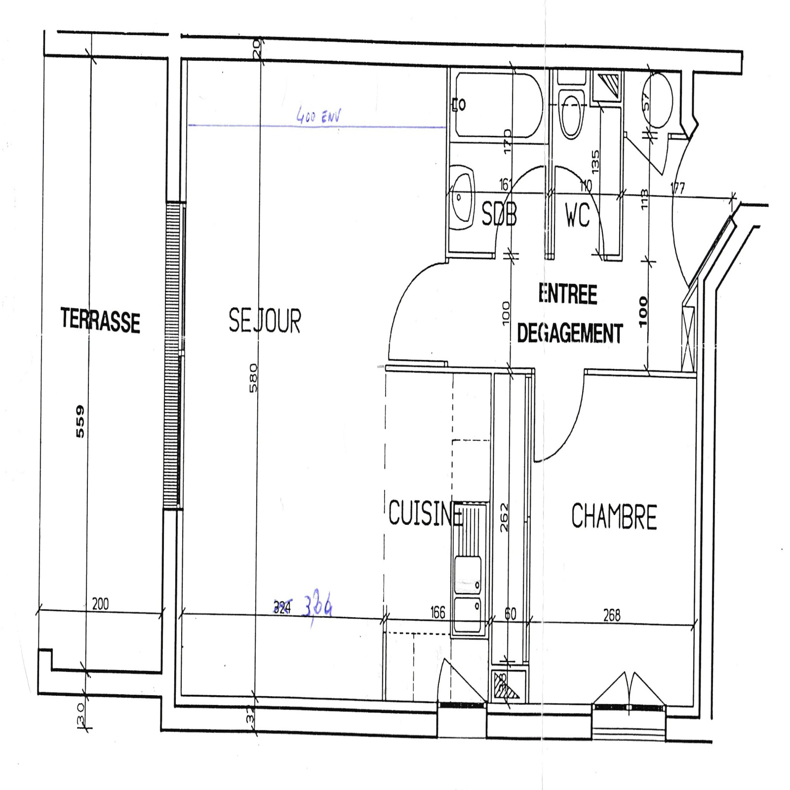
Au cœur du dynamique quartier Saint-Jean, à proximité immédiate des commerces et des transports en commun, découvrez ce T2 de 46,88 m².
Composé d'une pièce de vie, salon, séjour, cuisine pouvant être ouverte sur la pièce de vie, le tout donnant sur une terrasse exposée sud .
Du côté nuit, une chambre avec placard, une salle de bains et des toilettes indépendants.
Le bien est complété par une place de parking privative et une cave, ajoutant une valeur supplémentaire.
L'emplacement stratégique, à seulement 210 mètres des transports en commun et à 400 mètres des commerces, en fait une opportunité attractive.
Dans une copropriété à taille humaine avec seulement 10 appartements, aucune procédure en cours et des charges de copropriété s'élevant à 98.20 € par mois, eau comprise.
Performances énergétiques notées D et émissions de gaz à effet de serre notées D. Les coûts énergétiques annuels sont estimés entre 699 € et 945 €. Les informations sur les risques potentiels sont disponibles sur le site Géorisques.
Les honoraires, inclus dans le prix affiché, s'élèvent à 6.5 % et sont à la charge de l'acquéreur.
Annonce rédigée par JULIE LUCAS, agent commercial immatriculé au RSAC sous le numéro 524 742 350.
Les informations sur les risques auxquels ce bien est exposé sont disponibles sur le site Géorisques
